全校师生:
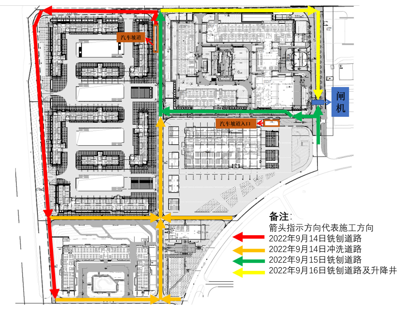
根据沙河校区规划建设工作安排,计划于2022年9月14日至18日西区地块(5-11公寓、西区食堂、八号楼、北门周边等)沥青路面铣刨和铺油工作。为尽可能减小对师生正常学习生活、道路通行及物业秩序管理的影响,施工计划分区域与阶段进行,具体如下。
(1)2022年9月14日至9月16日,进行路面铣刨和井口升降施工;
(2)2022年9月17日至18日,进行路面铺油施工,其中,9月18日6:00-24:00临时封闭西区地库出入口及北门,师生及通勤人员当日可从南二门进校。9月19日,西区地库出入口及北门恢复正常通行。
路面铣刨和铺油期间,会产生一定施工噪音,施工人员将严格控制施工时间,尽可能减少对师生的影响。

西区三地块沥青道路铣刨范围示意图

西区三地块一段沥青道路铺油示意图

西区三地块二段沥青道路铺油示意图
备注:
学生5公寓西侧道路铺设沥青时,施工单位将做好标识牌导引及临时通道铺设,以便学生取快递。
校园规划建设与资产管理处沙河校区管理委员会办公室
2022年9月13日